■用途
本標準適用于稀油循環潤滑系統中,輸送介質粘度等級為N22-N460工業潤滑油的斜齒輪油泵及裝置。
■結構優點
XB1斜齒輪油泵為帶閥齒輪泵,自身具保護功能 在系統主安全閥出現問題或油路堵塞時,由于其自身帶
有安全閥,可將泵排出的油直接回流到吸油側,從而可保護泵及系統不會因壓力超高而損壞。
■基本參數及外形尺寸
表1 JB/ZQ4591-86
| 斜齒輪油泵 |
斜齒輪油泵裝置 |
| 型號 |
公稱流量
l/min |
公稱壓力MPa |
容積效率% |
吸入高度mm |
重量kg |
型號 |
電動機 |
| 型號 |
功率kw |
轉速r/min |
重量kg |
| XB1-160 |
160 |
0.63 |
≥90 |
500 |
59 |
XBZ1-160 |
Y132M-4-B3 |
7.5 |
1440 |
190 |
| XB1-200 |
200 |
60 |
XBZ1-200 |
Y160M-4-B3 |
11 |
1460 |
190 |
| XB1-250 |
250 |
76 |
XBZ1-250 |
259 |
| XB1-315 |
315 |
78 |
XBZ1-315 |
Y160L-4-B3 |
15 |
1460 |
261 |
| XB1-400 |
400 |
98.5 |
XBZ1-400 |
302 |
| XB1-500 |
500 |
100 |
XBZ1-500 |
303 |
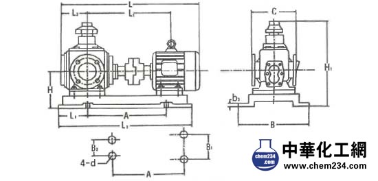
■油泵外形尺寸應符合圖1、表2的規定。

圖1 XB1型斜齒輪油泵裝置
表2 mm
|
型號
|
d
(n6)
|
l
|
d3
|
H
|
H1
|
H2
|
H3
|
L
|
L1
|
L2
|
L3
|
B
|
B1
|
B2
|
b
|
|
XB1-160
|
22
|
50
|
18
|
450
|
164
|
142
|
20
|
350
|
172
|
90
|
140
|
256
|
240
|
200
|
6
|
|
XB1-200
|
|
XB1-250
|
25
|
60
|
480
|
181
|
155
|
22
|
380
|
185
|
160
|
160
|
340
|
250
|
210
|
8
|
|
XB1-315
|
|
XB1-400
|
28
|
60
|
20
|
510
|
198
|
168
|
25
|
425
|
210
|
180
|
180
|
260
|
8
|
|
XB1-500
|
|
型號
|
t
|
吸油口法蘭
|
排油口法蘭
|
|
DN
|
D
|
D1
|
d1
|
n1
|
D1
|
DN
|
D
|
D1
|
d1
|
n2
|
b2
|
α
|
|
XB1-160
|
24.5
|
80
|
200
|
160
|
17.5
|
8
|
20
|
65
|
185
|
145
|
17.5
|
4
|
20
|
45°
|
|
XB1-200
|
|
XB1-250
|
28
|
100
|
100
|
180
|
22
|
80
|
200
|
160
|
8
|
22.5°
|
|
XB1-315
|
|
XB1-400
|
31
|
125
|
250
|
210
|
24
|
100
|
220
|
180
|
22
|
|
XB1-500
|
■油泵裝置的外形尺寸應符合圖2、表3的規定。

圖2 XBZ1型斜齒輪油泵裝置
表3 mm
|
型號
|
H
|
H1
|
H2
|
H3
|
L
|
L1
|
L2
|
L3
|
L4
|
L5
|
L6
|
B
|
B1
|
B2
|
B3
|
B4
|
|
XBZ1-160
|
510
|
234
|
212
|
25
|
962
|
508
|
129
|
800
|
145
|
55
|
400
|
410
|
256
|
210
|
360
|
320
|
|
XBZ1-200
|
141
|
|
XBZ1-250
|
554
|
255
|
229
|
30
|
977
|
597
|
141
|
935
|
155
|
45
|
500
|
480
|
340
|
255
|
430
|
330
|
|
XBZ1-315
|
148
|
|
XBZ1-400
|
625
|
903
|
273
|
1187
|
644
|
141
|
1020
|
160
|
40
|
600
|
|
XBZ1-500
|
156
|